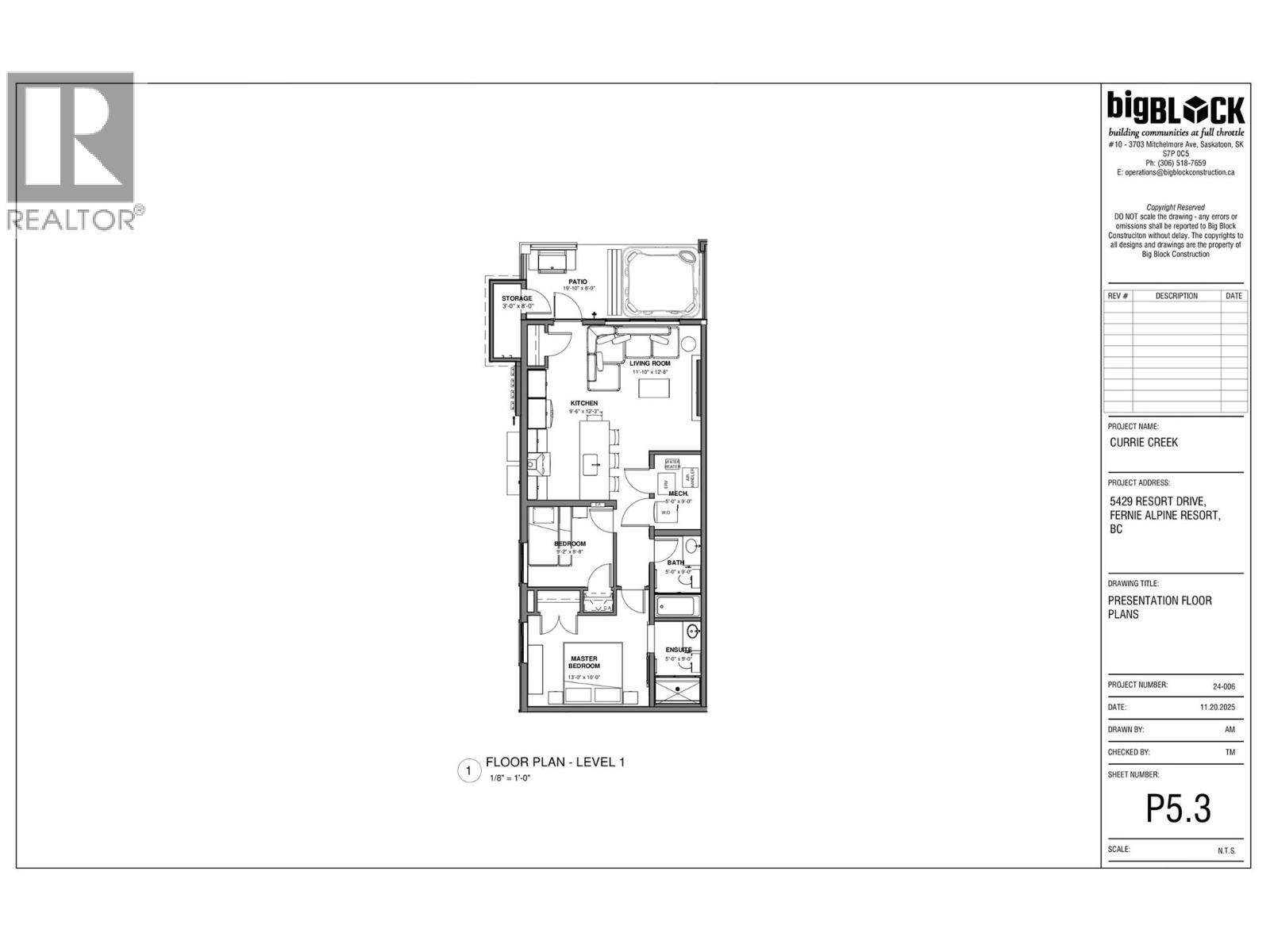
Mountain modern ski-in living at the base of Fernie Alpine Resort. Crafted with precision and designed for the mountain lifestyle, this 2-bedroom, 2-bathroom single-level condo offers over 800 sq ft of efficient, well-planned living space. The bright and functional layout maximizes every square foot. The spacious primary suite features a full ensuite, generous closet space, and room for a king-sized bed—an ideal retreat after a day on the slopes. The second bedroom and full bathroom provide excellent flexibility for guests, rental potential, or a small family. Outside, enjoy a private patio with space for a hot tub, outdoor dining set, and a secure storage locker large enough for all of your gear and mountain toys. Ski-in access at the end of your day adds unbeatable convenience, and the home is located just a 7-minute drive from Downtown Fernie—offering the perfect balance of resort living and town proximity. A rare opportunity to own a modern, low-maintenance mountain basecamp in one of the most desirable locations at Fernie Alpine Resort. (id:17834)